Smart, Stylish SmallHomes
Discover VB Build’s new Clever Living Co cabin range — thoughtfully designed small homes from 30m² to 70m² that combine smart design, quality materials, and efficient construction. Whether you’re after a compact getaway, a rental opportunity, or a modern downsized home, our cabins offer comfort, style, and practicality in one complete package.
Scroll through the options below to explore floor plans and get in touch to discuss the details.
30m² Studio Key features:

40m² Studio Key features:

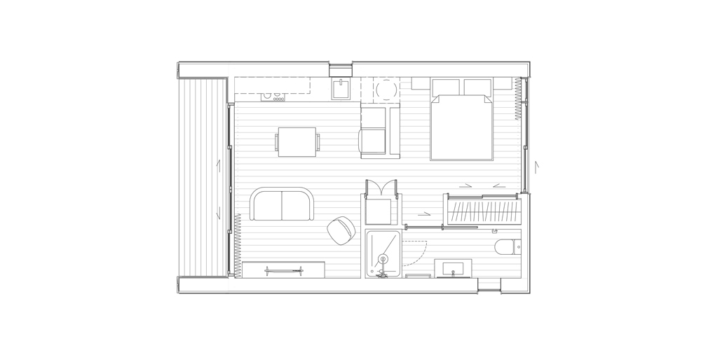
50m² One Bed Key features:

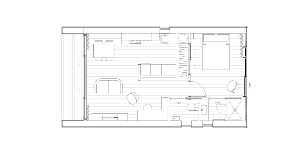
60m² Two Bed Key features:

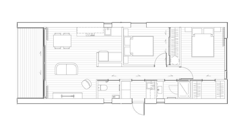
70m² Two Bed + Study Key features:

Let’s Build Something Great Together
Ready to start your project or have questions?
Get in touch with us today.
Matt
matt@vbbuild.net
022 094 4902
Pete
pete@vbbuild.net
021 0888 3703
Office
office@vbbuild.net
Alternatively, fill out our simple enquiry form, and we’ll get back to you promptly to discuss your needs.

